Stage Lighting

- Dimmer circuits
- 3kw x 612, 4kw x 78, 6kw x 110, Total 800 circuits
- Dimmer (Matsumura Fantasy 701)
- Preset fader: 100x3 faders
Channel: 1,500 channels
Scene memory: 1,000 scenes
Sub-fader: 40 faders - Lighting equipment
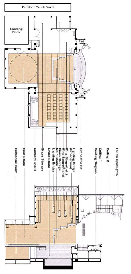
- Lighting bridge (proscenium), Lighting bridge 1,2,3, Lighting fly duct, Middle sky cyclorama light, Sky cyclorama light, Far sky cyclorama light, Open/close ground row light, Portal tower light, Sidelight batten, Proscenium sidelight, Front sidelight, Conductor light, Proscenium light 1,2 Ceiling light 1,2
- Lighting instrument
- various types of instrument
- Special lighting instrument
- PANI projector spotlights (4kw x 2, 1.2kw x 2), 4kw HMI spotlight x 2, Follow spotlights: 3kw x 4 (Follow spotlight room), 1kw x 2 (Front side), 500w x 2 (Stage)
Video Equipment

Video projector, Overhead projector (OHP), Slide projector
Sound Equipment

- Sound equipment
- Mixing console (WR-C500/32), Full digital mixing console, Sub-mixer, Foldback mixer, Proscenium speakers (center, right, left), Side column speakers, Movable speakers (large, medium, small), Microphones (various types)
- Communication equipment
- Intercome system, Talkback system, Sign-lamp system, Monitoring equipment (sound system and video system)
Loading Dock
- Loading dock (Loading gate)
- 4.2m (H) x 7.5m (W) x 10.5m (D)
- Parking space (Truck yard)
- Outdoor: 4 eleven-ton trucks
Indoor (in loading dock): 2 eleven-ton trucks

Dressing Rooms and Rehearsal Room
Dressing rooms


Private dressing room x 4, Small dressing room x 2, Medium dressing room x 2, Large dressing room x 5, Rehearsal room's dressing room x 1
Rehearsal room
Rehearsal room x 1 (280m2)

Other rooms
Backstage office, Green room, Medical-aid room, Organizer's office, Staffroom x 2




